Eladó Családi ház, Békéscsaba

#683700367

Eladó Családi ház

15.9 millió Ft

Békéscsaba Áchim András lakótelep
Alapterület:
112 m2
Szobák száma:
2
Állapot:
Felújítandó
Építési mód:
Vegyes
Jó közlekedéssel
Kertkapcsolatos

Kérjen személyes bemutatást!
Adja meg adatait, és hogy mikor érne rá!

Az Adatkezelési tájékoztatót elolvastam és elfogadom.

Megfelelő időpontok

Hétköznap délelőtt
Hétköznap délután
Hétköznap este
Hétvégén délelőtt
Hétvégén délután
Hétvégén este
Kérés elküldése
713 m2
Felújítás alatt
Délnyugat
Bevezetve (230 Volt)
Van, saját vízórával
Gázcsonk a telken
Közműhálózatba bekötve

Felújítandó, nagy teraszos polgári ház, a Tesco közelében

Békéscsabán, a Tesco közelében, eladó egy 112 nm-es, felújítandó családi ház, összközműves, 713 nm-es telken. (F)

Irányár: 15,9 MFt 

Tel: +36205020207

 

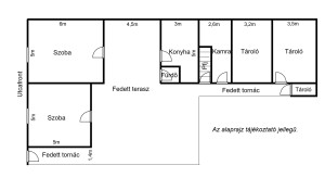
Békéscsabán, a Tesco-tól 500, az Áchim ltp. központjától 900 méterre található a bruttó 203 nm alapterületű családi ház, mely 713 nm-es, összközműves telken fekszik. 

 

A hetvenes években épült polgári jellegű, vegyes falazatú ház, kiemelt, magas lábazaton áll. Elkezdődött, de félbemaradt a felújítása, átépítése. A külső homlokzatot részben újra vakolták és hőszigetelték. Az utcafronti két nagy szobára új műanyag ablakokat tettek. Egy szenzációs méretű és fekvésű, fedett, 82 nm-es terasz helyezkedik el az épület központi részén. A két szobán kívül, két további helység nyílik ugyanerre a teraszra, amit konyhának és fürdőszobának terveztek. A padlásfeljáró után következik, egy 7, egy 14, egy 16 és egy 2 négyzetmétres kamra, vagy tároló. Sok célra alkalmasak lehetnek, akár még egy lakás kialakítható bennük. Ezek a helyiségek egy 12 nm-es fedett folyosóról közelíthetők meg. A kiskaputól a hatalmas fedett teraszig, szintén száraz út vezet, egy 8 nm-es, fedett folyosón keresztül. 

 

A tetőt újra rakták, a lakás felett, egészen a padlásfeljáró vonaláig, egészen a kamrákig és tárolókig. 

 

A villany, víz, szennyvízcsatorna ki van építve. 

 

A buszmegálló és az óvoda csupán 650, az iskola pedig 850 méterre van. A Tesco csak 500 méter.

 

Aki szeretné a saját elképzeléseit megvalósítani leendő otthonában... és inkább felújítandó, de jó szerkezeti állapotú házat keres, kevés pénzért..! Az itt megtalálhatja a számítását! Szabhatja kisebbre és nagyobbra is, alakítsa igényei szerint! Tekintse meg!

 

 

 

 

 

 

 

Helyiség Méret (m2)
Szoba 30
Szoba 25
Konyha + étkező 16.5
Fürdőszoba + WC
Terasz 82

Kérdése van?
Adja meg adatait és felhívjuk!

Az Adatkezelési tájékoztatót elolvastam és elfogadom.
Üzenet küldése